Безриэлтора.ру - это сервис для поиска, аренды, покупки, сдачи, продажи недвижимости без посредников
Снять или купить жильё от собственника не выходя из дома

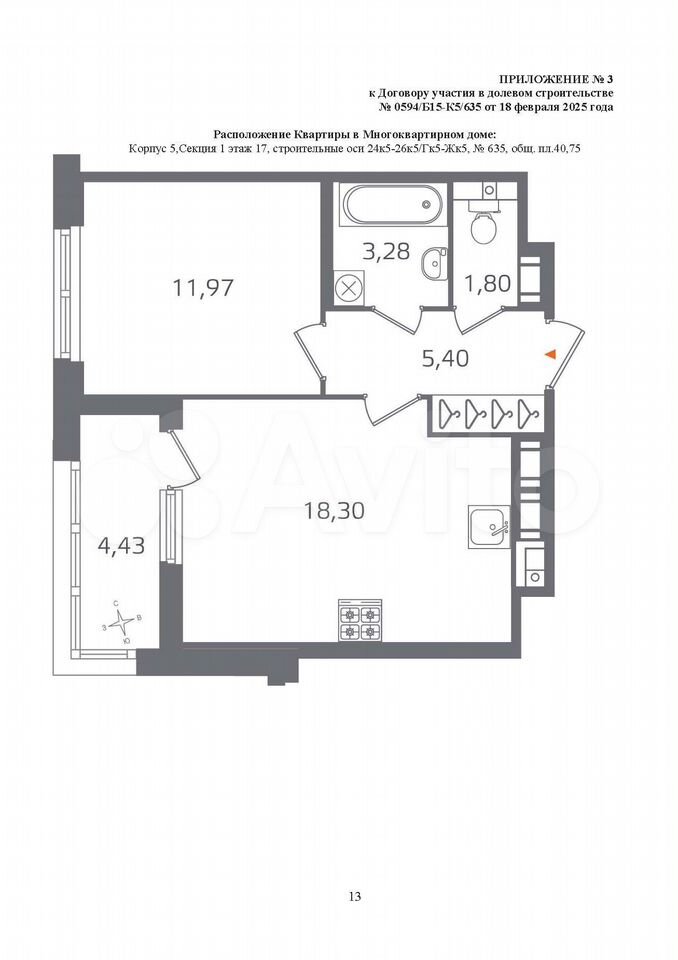
Купить 1-к. квартиру, 40,8 м², 17/17 эт. в Санкт-Петербурге без посредников

13 500 000 руб.
Подключите наш Телеграм-бот
Получайте объявления в автоматическом режиме