Безриэлтора.ру - это сервис для поиска, аренды, покупки, сдачи, продажи недвижимости без посредников
Снять или купить жильё от собственника не выходя из дома

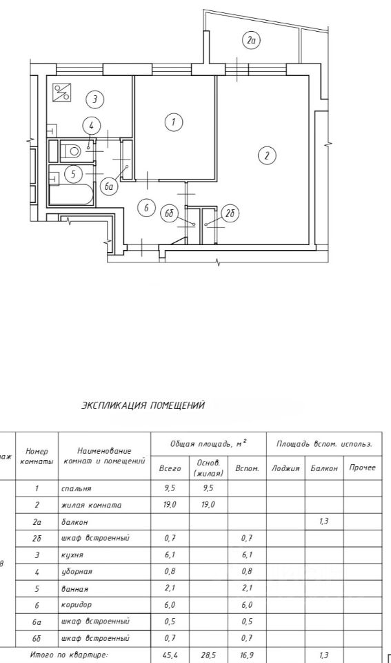
Купить 2-комн. квартиру, 45,4 м² в Москве без посредников

12 800 000 руб.
Подключите наш Телеграм-бот
Получайте объявления в автоматическом режиме